Дом в КП Усадьбы Архангельское

Описание

Вашему вниманию представляется дом площадью 1291,2 м² расположен на участке 20 соток в элитном коттеджном поселке «Усадьбы Архангельское, расположенном в 9 км от МКАД по Ильинскому шоссе.
Архитектура дома выдержана в классическом стиле. Фасад украшают изящные колонны. Облицовка выполнена из натурального камня. Спланировано 4 этажа со свободной планировкой, что позволяет реализовать любые дизайнерские решения. В доме много террас и большие окна. Предусмотрен гараж на 2 автомобиля. Установлены центральные коммуникации: водоснабжение и канализация, магистральное газоснабжение, электричество мощностью 25 кВт. На участке высажены хвойные деревья.
Количество спален: 5 Тип дома: кирпичный Готовность: Недострой Категория земли: Земли нас. пунктов, ИЖС

Коммуникации

Газ: Да Канализация: центральная Водопровод: центральный Электричество, кВт: 25

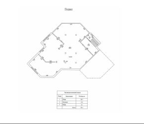
Планировка

свободная планировка

О посёлке

Коттеджный поселок «Усадьбы Архангельское» расположен всего в 9 км от МКАД по Ильинскому шоссе. Добраться до поселка также можно как по Рублево-Успенскому шоссе, так и по Новорижскому.

На территории 10 га разместилось 37 домовладений. Проект назван в честь соседствующей усадьбы «Архангельское». При проектировке домов в одноименном поселке использовались чертежи позапрошлого века – таким образом архитекторы старались воссоздать облик дворянских усадеб, переосмысленный в условиях современности за счет новых технологий строительства, инженерии, материалов. Поселок имеет единую территорию, сеть коммуникаций, систему охраны и регулируемый въезд на территорию. Также в поселке есть все центральные коммуникации: газ, электричество, канализация, водопровод.

Благодаря удачному расположению поселка «Усадьбы Архангельское» его жителям доступна инфраструктура Новой Риги и Рублево-Успенского шоссе. Помимо мест для культурного досуга, здесь есть множество торговых комплексов (“Barviha Luxury Village”, ТРЦ “Павлово Подворье”, “Глобус Гурмэ”, “Азбука Вкуса”), ресторанов (“Dream House”, “Царская охота”, “Дворянское гнездо”, “Веранда у дачи”, “Причал”), спортивных комплексов (сеть клубов “World Class”). Недвижимость в КП “Усадьбы Архангельское” поможет обеспечить детям отличное образование: в нескольких минутах езды находятся гимназия в Жуковке, “Первая Московская Гимназия” и школа “Президент”. Поселок хорошо вписан в природное окружение.

Добраться до поселка из центра Москвы можно в течении 30 минут. Удобное расположение поселка позволяет наслаждаться природой и одновременно быть в непосредственной близости от цивилизации.

Лот: 101039201

10 км от МКАД 1291 м² 20 сот.
дом 5 спален без отделки в ипотеку
160 000 000 рублей

Ваш персональный менеджер

Попова Нина
Попова Нина
Специалист по работе с загородной недвижимостью

Описание

Вашему вниманию представляется дом площадью 1291,2 м² расположен на участке 20 соток в элитном коттеджном поселке «Усадьбы Архангельское, расположенном в 9 км от МКАД по Ильинскому шоссе.
Архитектура дома выдержана в классическом стиле. Фасад украшают изящные колонны. Облицовка выполнена из натурального камня. Спланировано 4 этажа со свободной планировкой, что позволяет реализовать любые дизайнерские решения. В доме много террас и большие окна. Предусмотрен гараж на 2 автомобиля. Установлены центральные коммуникации: водоснабжение и канализация, магистральное газоснабжение, электричество мощностью 25 кВт. На участке высажены хвойные деревья.
Количество спален: 5 Тип дома: кирпичный Готовность: Недострой Категория земли: Земли нас. пунктов, ИЖС

Коммуникации

Газ: Да Канализация: центральная Водопровод: центральный Электричество, кВт: 25

Планировка

свободная планировка

О посёлке

Коттеджный поселок «Усадьбы Архангельское» расположен всего в 9 км от МКАД по Ильинскому шоссе. Добраться до поселка также можно как по Рублево-Успенскому шоссе, так и по Новорижскому.

На территории 10 га разместилось 37 домовладений. Проект назван в честь соседствующей усадьбы «Архангельское». При проектировке домов в одноименном поселке использовались чертежи позапрошлого века – таким образом архитекторы старались воссоздать облик дворянских усадеб, переосмысленный в условиях современности за счет новых технологий строительства, инженерии, материалов. Поселок имеет единую территорию, сеть коммуникаций, систему охраны и регулируемый въезд на территорию. Также в поселке есть все центральные коммуникации: газ, электричество, канализация, водопровод.

Благодаря удачному расположению поселка «Усадьбы Архангельское» его жителям доступна инфраструктура Новой Риги и Рублево-Успенского шоссе. Помимо мест для культурного досуга, здесь есть множество торговых комплексов (“Barviha Luxury Village”, ТРЦ “Павлово Подворье”, “Глобус Гурмэ”, “Азбука Вкуса”), ресторанов (“Dream House”, “Царская охота”, “Дворянское гнездо”, “Веранда у дачи”, “Причал”), спортивных комплексов (сеть клубов “World Class”). Недвижимость в КП “Усадьбы Архангельское” поможет обеспечить детям отличное образование: в нескольких минутах езды находятся гимназия в Жуковке, “Первая Московская Гимназия” и школа “Президент”. Поселок хорошо вписан в природное окружение.

Добраться до поселка из центра Москвы можно в течении 30 минут. Удобное расположение поселка позволяет наслаждаться природой и одновременно быть в непосредственной близости от цивилизации.

Какой поселок на Новой Риге
подойдет именно вам?

Ответьте на несколько вопросов и получите экспертное мнение, какой поселок подходит под ваши требования (отметьте галочками приоритетные параметры)

Каталог в мессенджере